100) ? false : true; navIsShown = (window.pageYOffset > viewportHeight) ? true : false; triggerTransitions = window.pageYOffset > (viewportHeight / 2) ? true : false; if (navIsOpen && !atTop && !navIsShown) navIsOpen = false; ">
Toggle Nav
Images
Floor Plans
3D Tour
Map
Scroll to Content
2087 Westbourne Dr
Oviedo, FL 32765
Images
Show more
Slideshow
Photo Grid
Hide
Previous
Next
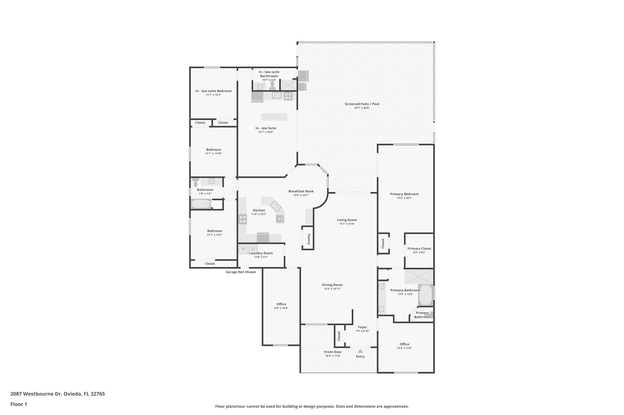
Floor Plans
Slideshow
Photo Grid
Hide
Previous
Next
3D Tour