100) ? false : true; navIsShown = (window.pageYOffset > viewportHeight) ? true : false; triggerTransitions = window.pageYOffset > (viewportHeight / 2) ? true : false; if (navIsOpen && !atTop && !navIsShown) navIsOpen = false; ">
Toggle Nav
Images
Videos
Floor Plans
3D Tour
Map
Scroll to Content
2260 Panorama Dr
Chuluota, FL 32766
Images
Show more
Slideshow
Photo Grid
Hide
Previous
Next
Videos
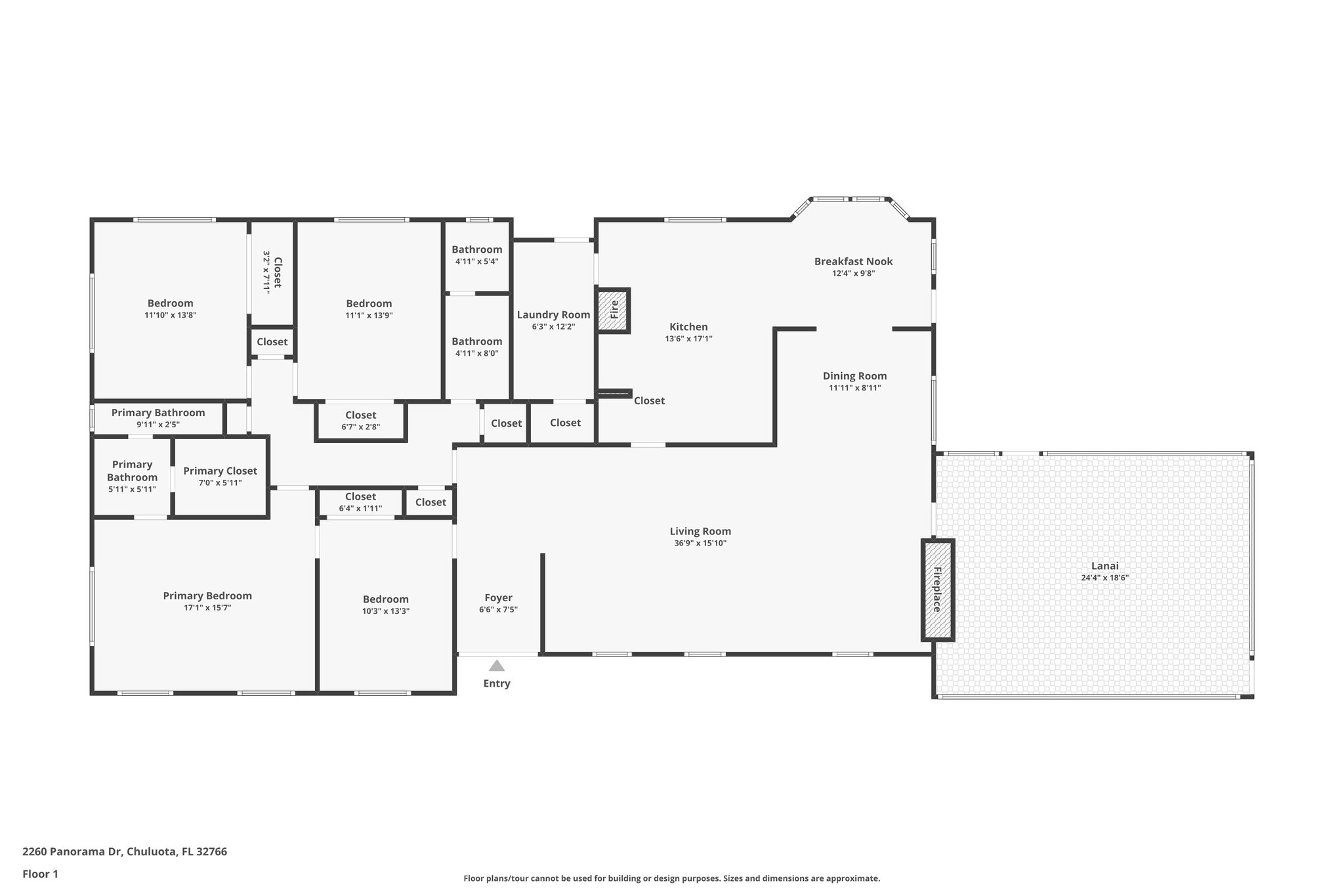
Floor Plans
Slideshow
Photo Grid
Hide
Previous
Next
3D Tour