915 Westpark Dr
Celebration, FL 34747

  • $3,200,000
  • 6 Bedrooms
  • 5 Bathrooms
  • 6,750 Sq/ft

Details

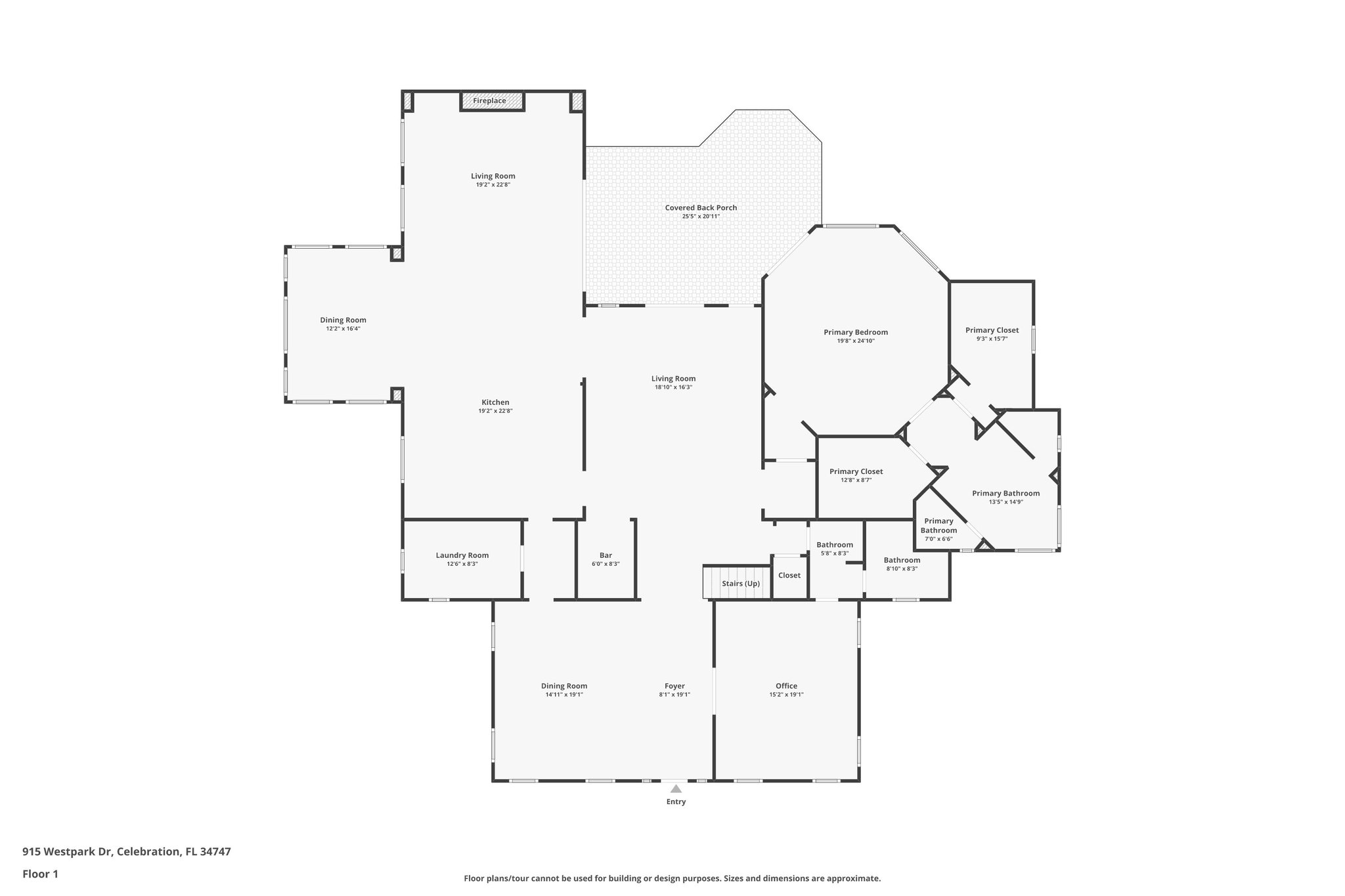
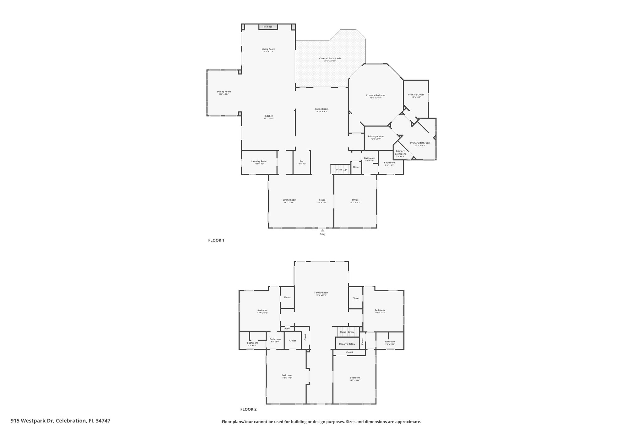
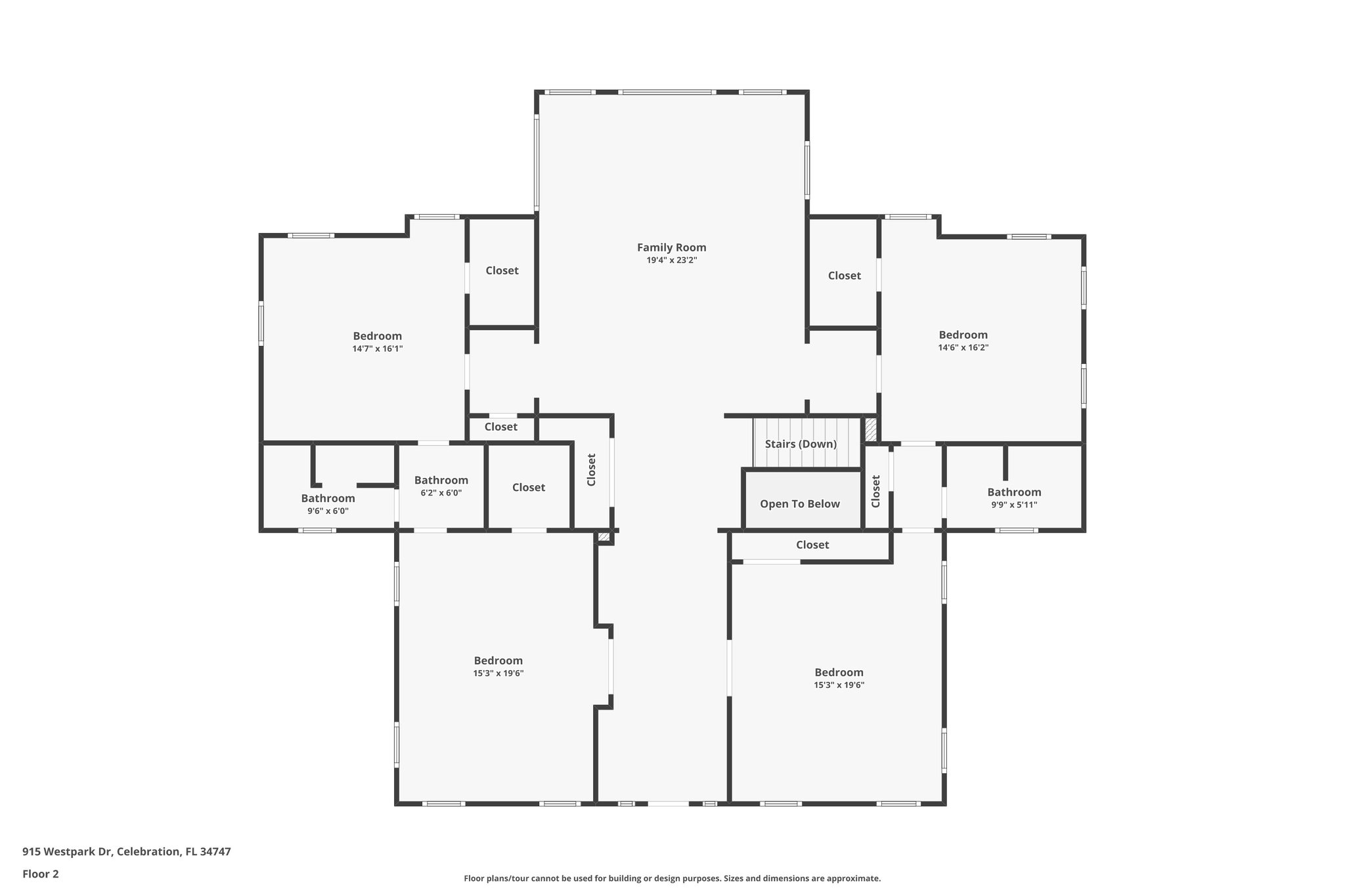
Welcome to 915 West Park Drive—an exceptional Colonial-style estate in the heart of Celebration, inspired by the historic Rosalie Mansion and custom built by Derrick Builders, known for their luxury homes in Golden Oak. Offered for the first time, this one-of-a-kind property sits on a rare double lot (lot 92 & 93), backing to a private preserve and positioned on a premier golf course corner—an unparalleled setting in Celebration. The expansive yard is truly one of a kind, offering an exceptional amount of green space with room to relax, entertain, or create your own outdoor retreat. Inside, the home features 5 bedrooms and 5 bathrooms, (with 1 bedroom 1 bath garage) including a spacious first-floor primary suite with tray ceiling, abundant natural light, and a well-appointed bath with dual separate vanities, walk-in shower, with two generous walk-in closets. You can also exit to the rear patio via the Primary bedroom. The home’s inviting interior is defined by open, light-filled living spaces, detailed millwork, and a gracefully designed staircase that anchors the main level. A richly appointed wood-paneled library with custom built-ins and fireplace creates a warm and timeless retreat. Just off the downstairs library is a convenient full bathroom, perfect for additional guests. Designed for both formal entertaining and everyday living, the home offers a formal dining room, a sun-filled casual dining area surrounded by windows, and a spacious family room. Architectural details include three fireplaces located in the formal dining room, library, and family room—adding warmth and timeless character throughout. The kitchen is thoughtfully designed with custom cabinetry, ample workspace, a separate sink in the island, and just outside the kitchen a charming built-in bar area, flowing seamlessly into the main living spaces. Upstairs, additional bedrooms are complemented by a large bonus/game room with soaring ceilings perfect as a media room, playroom, or private retreat. Each bedroom offering Jack/Jill style bathrooms to share on each side. Upstairs you will also find a built-in library area separating the bedrooms and a balcony with partial views of the golf course. Outdoor living is equally impressive, featuring an expansive full-width brick patio and covered porch framed by stately columns, along with a prominent brick chimney—creating a timeless setting for entertaining or quiet enjoyment of the surrounding preserve. Additional highlights include downstairs a walk-in laundry room with extensive built-in cabinetry offering extra pantry storage, and a detached 3-car garage apartment with 1 bedroom and 1 bath—ideal for guests, multigenerational living, or income potential. Blending timeless architecture, craftsmanship, and an irreplaceable homesite, this is a rare opportunity to own one of Celebration’s most distinctive and storied properties.

  • $3,200,000
  • 6 Bedrooms
  • 5 Bathrooms
  • 6,750 Sq/ft
  • 3 Parking Spots
  • Built in 2001
  • MLS: S5147675

Images

Videos

Floor Plans

3D Tour