100) ? false : true; navIsShown = (window.pageYOffset > viewportHeight) ? true : false; triggerTransitions = window.pageYOffset > (viewportHeight / 2) ? true : false; if (navIsOpen && !atTop && !navIsShown) navIsOpen = false; ">
Toggle Nav
Images
Videos
Floor Plans
3D Tour
Map
Scroll to Content
588 Autumn Ash Dr
Clermont, FL 34715
Images
Show more
Slideshow
Photo Grid
Hide
Previous
Next
Videos
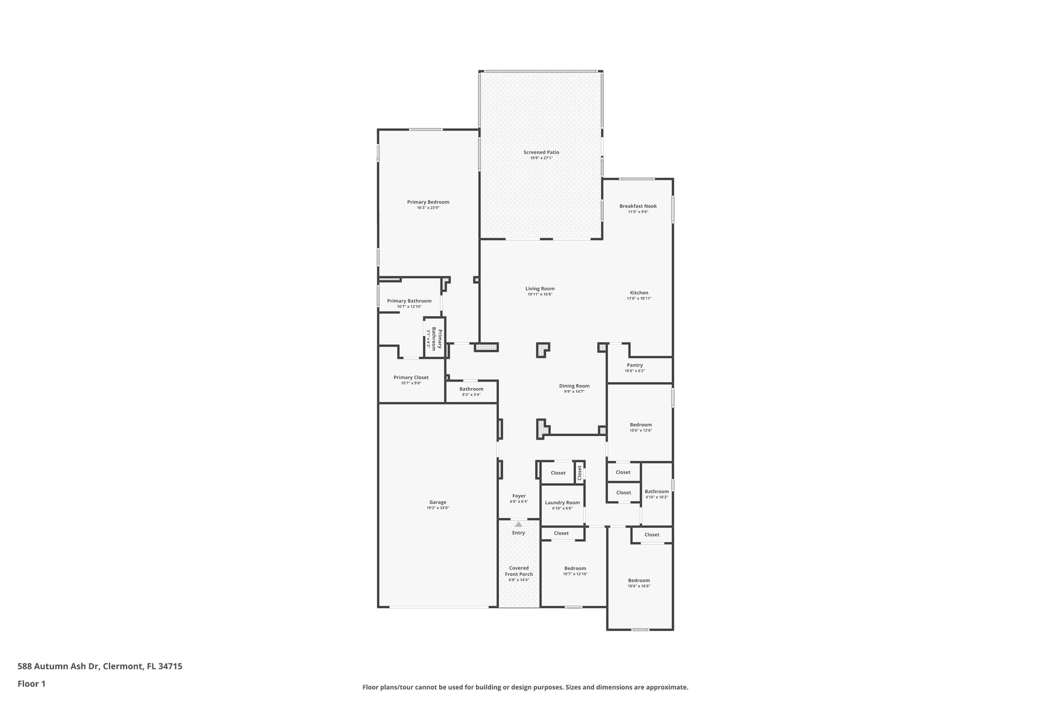
Floor Plans
Slideshow
Photo Grid
Hide
Previous
Next
3D Tour