162 Duncan Trail
Longwood, FL 32779

  • $450,000
  • 4 Bedrooms
  • 2 Bathrooms
  • 1,907 Sq/ft
  • 0.28 Acre Lot

Images

Details

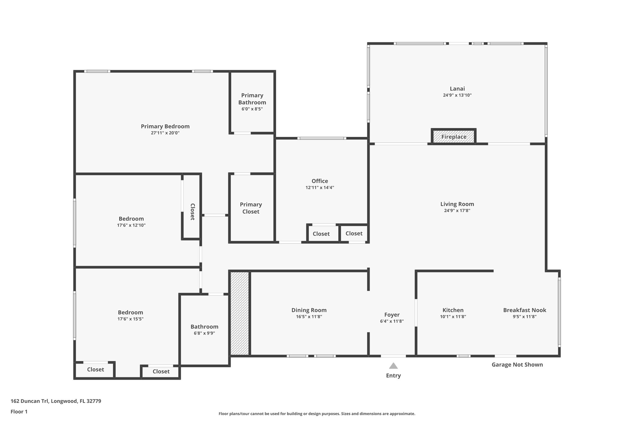
Step into this updated 4-bed, 2-bath home that sits on 0.26 acres in the sought-after Wekiva Hills community of Longwood. With a ROOF replaced in 2016, new WINDOWS in 2023 and PLUMBING updated in 2001, major updates are already in place. A welcoming side-entry two-car garage and mature landscaping set the tone as you walk inside to a bright, comfortable layout. The updated kitchen features granite countertops, stainless steel appliances, and plenty of cabinet space, ideal for everyday living and easy entertaining. The spacious family room centers around a striking floor-to-ceiling stone fireplace, adding warmth and character to the home. The primary suite provides a peaceful retreat, while the additional bedrooms offer space for guests, an office, or hobbies. Beautiful French doors lead to your large, fully fenced backyard that's expansive enough to install a private pool (or not) and still have plenty of room. Your backyard also includes a built-in fire pit, perfect for evenings outside, weekend cookouts, or simply relaxing in your own private outdoor space. Living in Wekiva Hills means enjoying access to four nearby parks, trails, and green spaces just minutes away. This home blends comfort, style, and a vibrant community setting, an ideal place to live well in Longwood.

  • $450,000
  • 4 Bedrooms
  • 2 Bathrooms
  • 1,907 Sq/ft
  • Lot 0.28 Acres
  • Built in 1979
  • MLS: O6360009

Videos

Floor Plans

3D Tour