100) ? false : true; navIsShown = (window.pageYOffset > viewportHeight) ? true : false; triggerTransitions = window.pageYOffset > (viewportHeight / 2) ? true : false; if (navIsOpen && !atTop && !navIsShown) navIsOpen = false; ">
Toggle Nav
Details
Images
Floor Plans
3D Tour
Map
Scroll to Content
3151 Sunset Walk Dr 209
Kissimmee, FL 34747
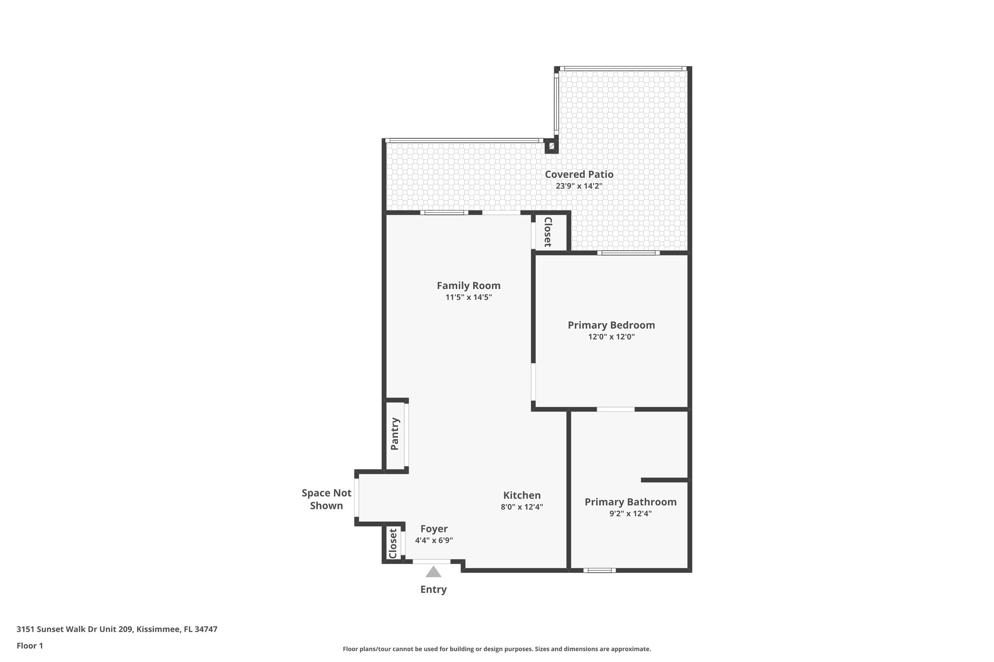
1 Bedrooms
1 Bathrooms
734 Sq/ft
Details
1 Bedrooms
1 Bathrooms
734 Sq/ft
Images
Show more
Slideshow
Photo Grid
Hide
Previous
Next
Floor Plans
Slideshow
Photo Grid
Hide
Previous
Next
3D Tour