431 N. Sans Souci Ave
DeLand, FL 32720


  • $425,000
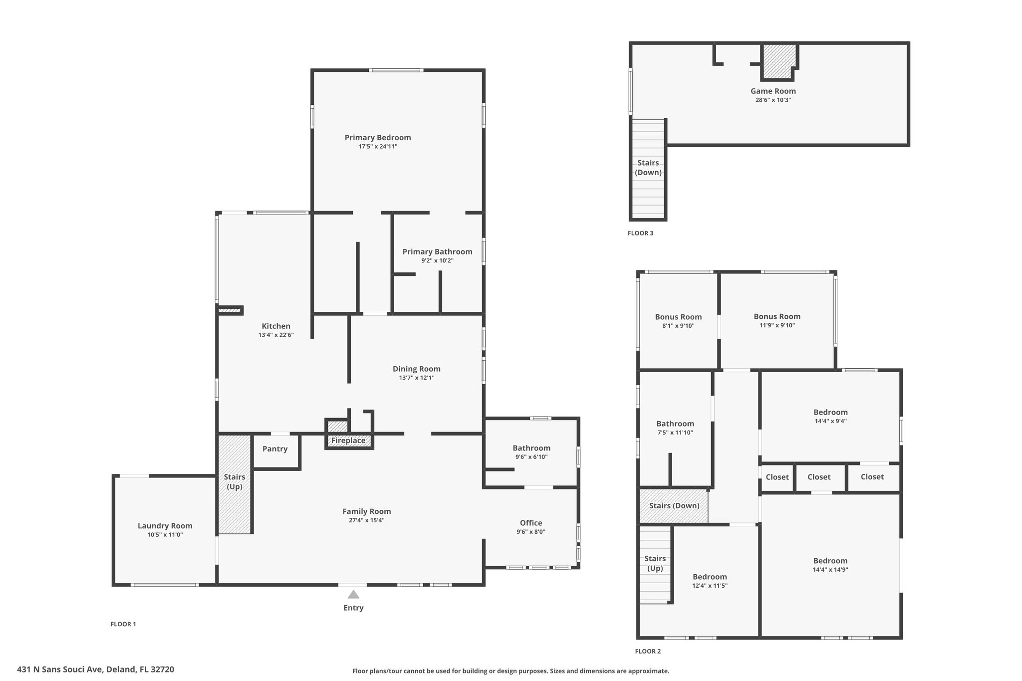
  • 5 Bedrooms
  • 3 Bathrooms
  • 2,778 Sq/ft
  • Lot 0.24 Acres
  • Built in 1920

Details

Welcome to a piece of DeLand’s storybook past where century-old character meets everyday living in one of Central Florida’s most walkable and beloved neighborhoods. Located just blocks from historic Stetson University and minutes from downtown DeLand’s shops, restaurants, and events, this spacious 5-bed, 3-bath home invites you to be part of its next chapter.

Originally built in 1920, this gracious home stands proud with a classic front porch that defines small town charm. Over the years, the home has been thoughtfully expanded to enhance both comfort and function, including the addition of a private primary suite, a dedicated downstairs laundry space, and an additional bathroom that allows the layout to live larger and more comfortably than many homes of its era.

Step inside and feel the warmth of an older home that has evolved with time. Abundant natural light, subtle modern updates, and timeless architectural details create a welcoming atmosphere that simply cannot be replicated in new construction.

At the heart of the home, character takes center stage. A cozy living room anchored by an original Chicago brick fireplace, a bright kitchen framed by a wall of windows with gas cooking, and flexible living areas across multiple levels offer space that adapts to your lifestyle. Whether you need quiet home offices, guest accommodations, creative studios, or game rooms, this home provides the versatility to make it truly your own.

Outside, imagine unwinding on the deck overlooking a generous backyard, an ideal setting for gardening, play, or entertaining under the Florida sky. With no HOA, you have the freedom to live comfortably and creatively in a home filled with personality and potential.

This is more than a house. It’s a lifestyle rooted in connection, walkability, and history. From strolling to a Hatters game, enjoying weekend brunch downtown, or relaxing on your front porch as the neighborhood comes alive, this home offers a rare opportunity to own a historic DeLand residence that blends timeless charm with meaningful space and modern relevance.

Images

Floor Plans

3D Tour