100) ? false : true; navIsShown = (window.pageYOffset > viewportHeight) ? true : false; triggerTransitions = window.pageYOffset > (viewportHeight / 2) ? true : false; if (navIsOpen && !atTop && !navIsShown) navIsOpen = false; ">
Toggle Nav
Images
Videos
Floor Plans
3D Tour
Map
Scroll to Content
1704 Hoofprint Ct
Fruitland Park, FL 34731
Images
Show more
Slideshow
Photo Grid
Hide
Previous
Next
Videos
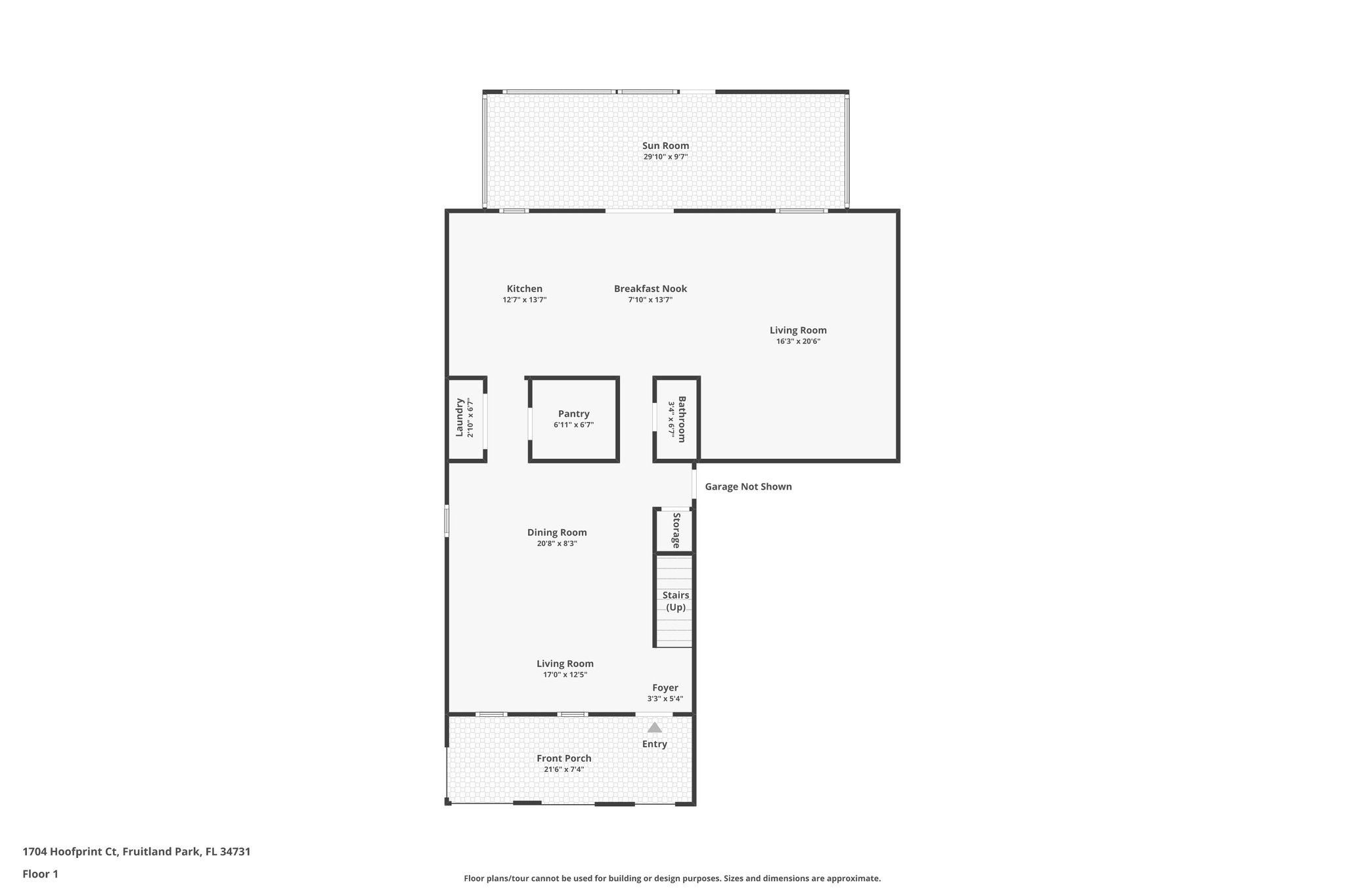
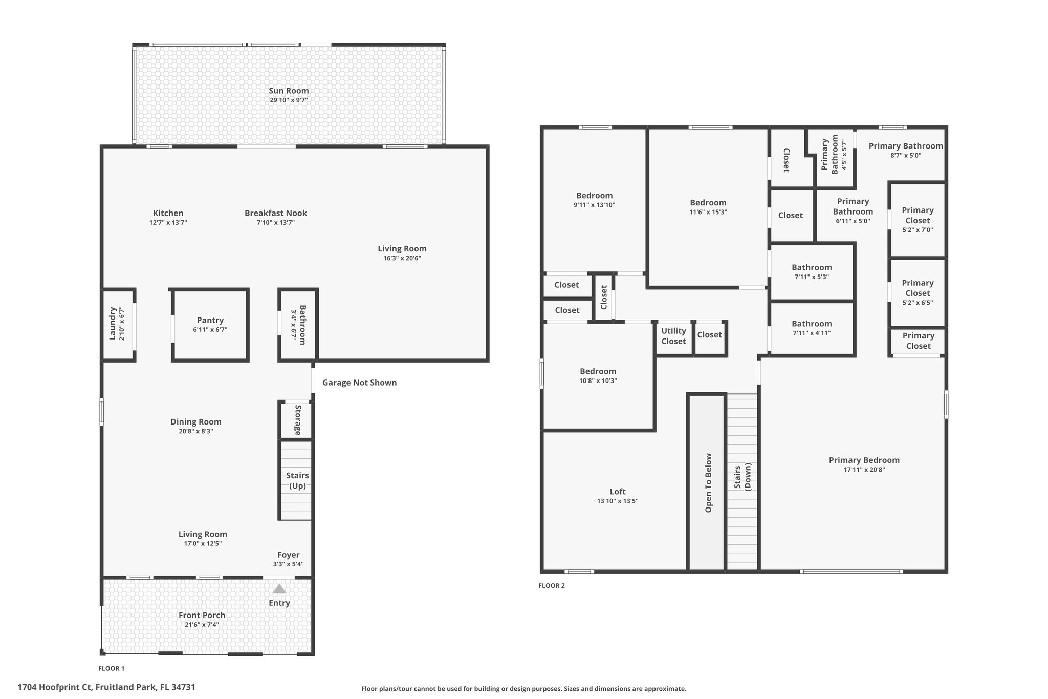
Floor Plans
Slideshow
Photo Grid
Hide
Previous
Next
3D Tour