100) ? false : true; navIsShown = (window.pageYOffset > viewportHeight) ? true : false; triggerTransitions = window.pageYOffset > (viewportHeight / 2) ? true : false; if (navIsOpen && !atTop && !navIsShown) navIsOpen = false; ">
Toggle Nav
Images
Videos
Floor Plans
3D Tour
Map
Scroll to Content
9027 Shadow Mountain St
Davenport, FL 33896
Images
Images
Community Pictures
Show more
Slideshow
Photo Grid
Hide
Previous
Next
Videos
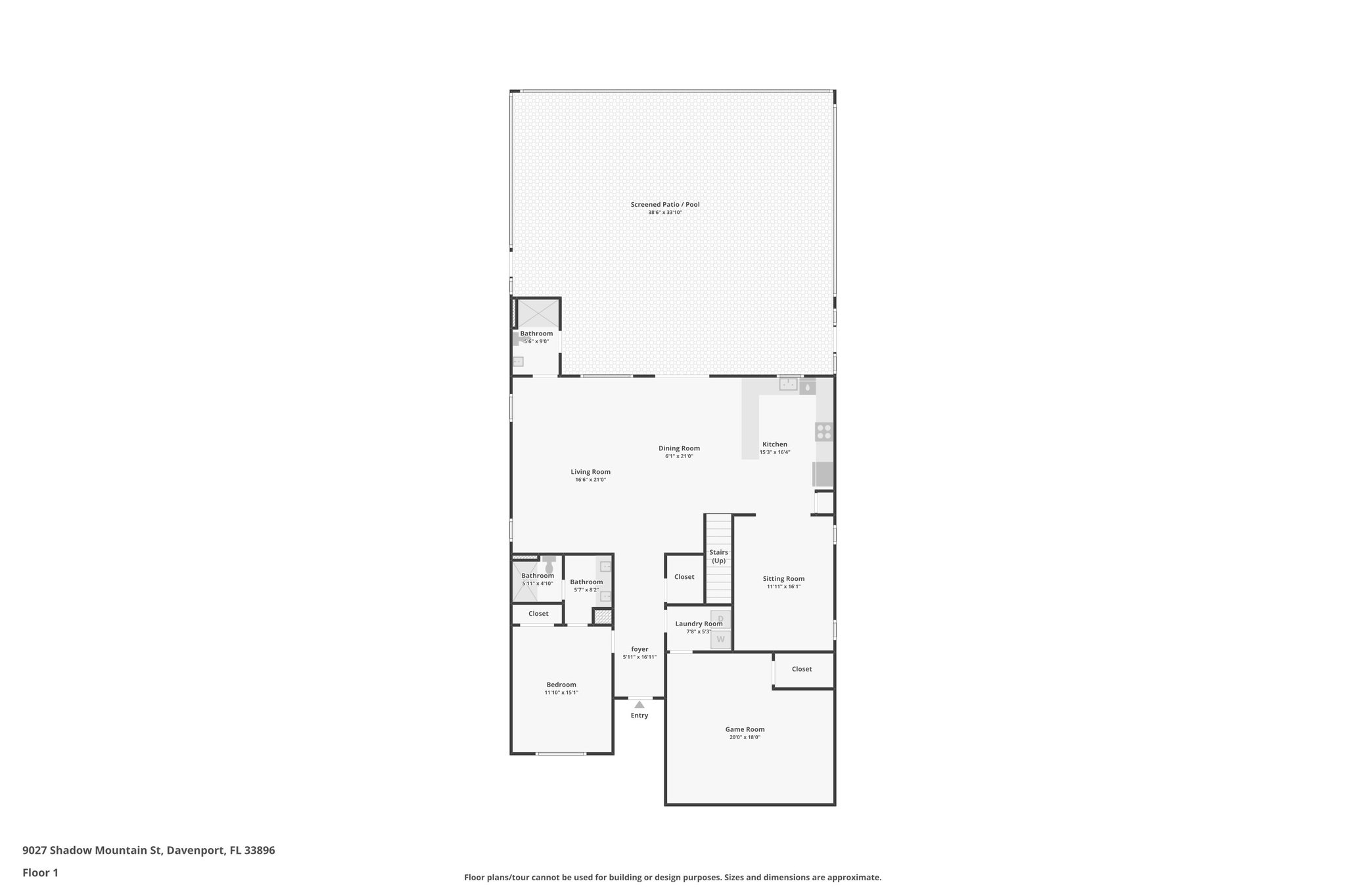
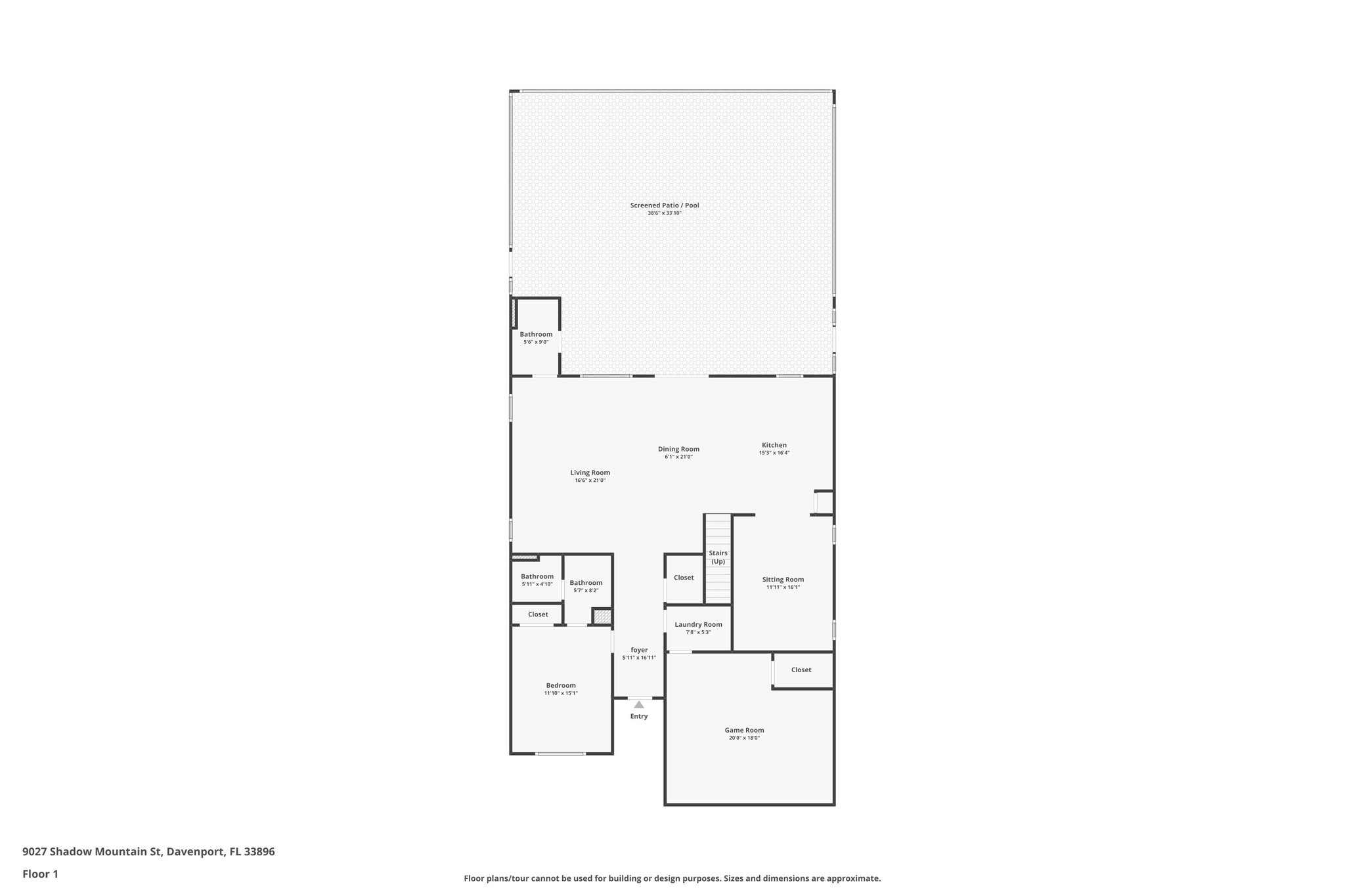
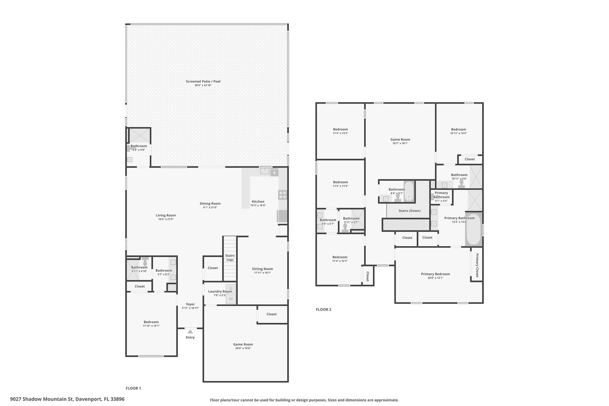
Floor Plans
Slideshow
Photo Grid
Hide
Previous
Next
3D Tour