27 S Center St
Eustis, FL 32726

  • $800,000
  • 2,786 Sq/ft

Details

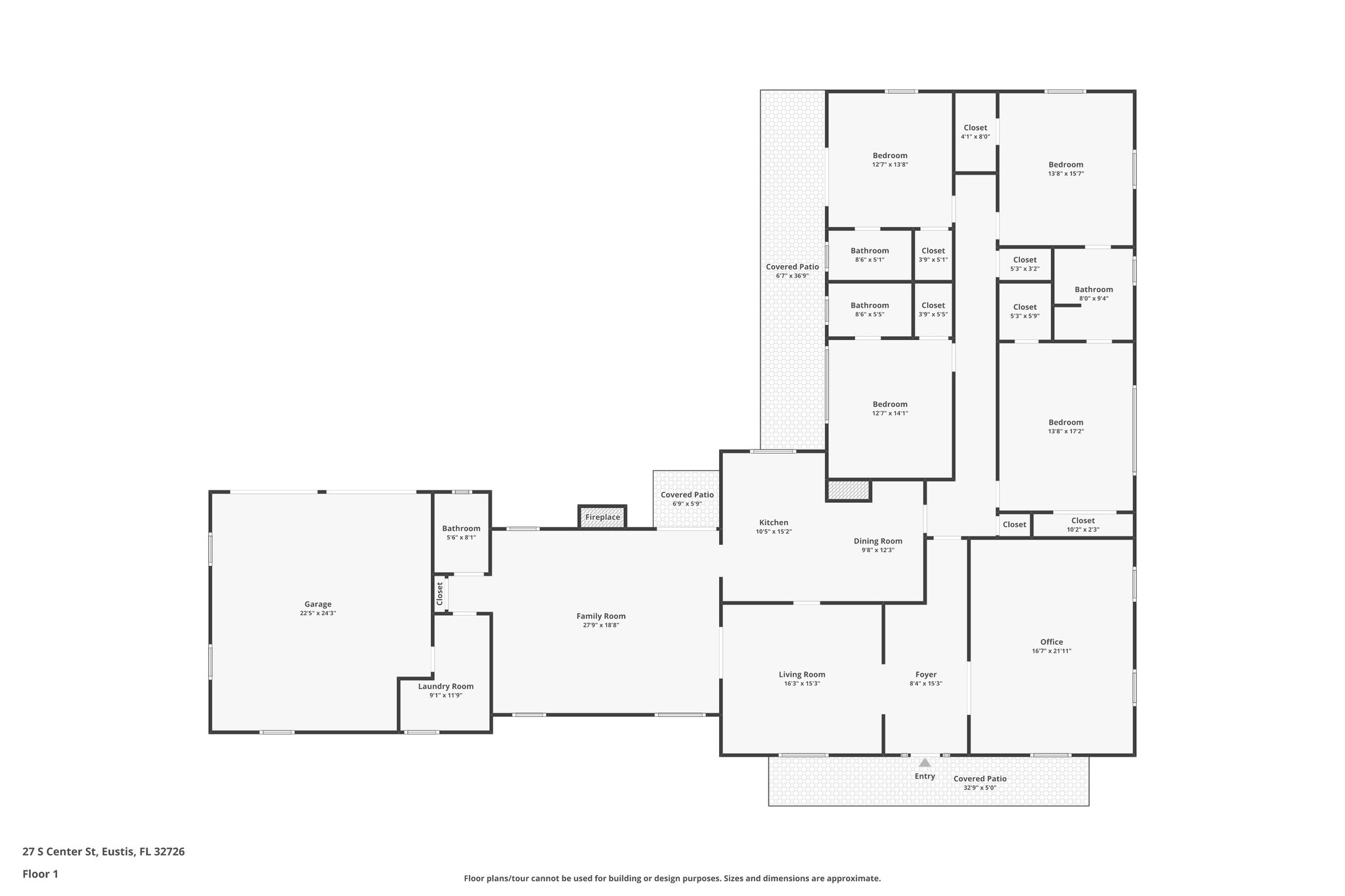
TURNKEY LICENSED ASSISTED LIVING FACILITY (ALF) – FULLY EQUIPPED & READY FOR IMMEDIATE OPERATION! An exceptional opportunity awaits with Infinity at Lake Eustis, a fully licensed, fully furnished Assisted Living Facility where a new owner can step in on day one and begin welcoming residents. This beautifully maintained property offers 8 licensed beds, complete with its LLC, licensing, website, furnishings, equipment, and ADA-compliant upgrades included in the sale—making it an incredibly rare turnkey package. Situated on 0.40 acres in a quiet yet centrally located neighborhood, the property is ideally placed near hospitals, medical offices, pharmacies, senior services, and charming downtown Eustis—an ideal setting for resident care and easy staff recruitment. Inside, the home features 2,786 sq ft of heated space (4,272 sq ft total), thoughtfully designed for comfort, accessibility, and an inviting residential feel. There are 4 bedrooms, three currently furnished with queen beds and one with twin beds, giving buyers flexibility to offer private rooms, couple accommodations, or convert to shared rooms as needed. A separate full bathroom serves staff and guests. The floor plan includes multiple warm and welcoming common areas: a large office with French doors and fireplace, family room with fireplace, living room, dining room, and a well-appointed kitchen. This facility has undergone extensive upgrades, including: New roof (1 yr); Two new AC units (1 yr); Fire alarm system & fire sprinkler system (approx. 3.5 yrs); Granite countertops (3 yrs); Convection stove/oven (3 yrs); ADA-compliant full handicap ramp with railing; Handicap-accessible tiled walk-in showers in resident baths; French doors, tiled foyer wall, and modern interior finishings; Fully furnished throughout; Attached 2-car garage (potential conversion with city approval or ideal for storage); Outdoors, residents and staff will enjoy the fenced backyard, offering privacy and calm surroundings, plus a gazebo with electrical outlets and an additional storage shed. A long driveway provides convenient staff and visitor parking. For those wishing to live on-site, one portion of the home can be used as an owner or staff suite (reducing capacity to 6 residents if implemented). This flexibility, combined with the property’s location and upgrades, makes it especially appealing to both new operators and expanding ALF owners. With licensing, branding, infrastructure, and furnishings already in place, this is an opportunity to bypass the lengthy setup process and immediately step into a beautifully updated, fully prepared facility. A rare turnkey ALF opportunity you won’t want to miss.

  • $800,000
  • 2,786 Sq/ft
  • Built in 1964
  • MLS: G5105132

Images

Videos

Floor Plans

3D Tour