100) ? false : true; navIsShown = (window.pageYOffset > viewportHeight) ? true : false; triggerTransitions = window.pageYOffset > (viewportHeight / 2) ? true : false; if (navIsOpen && !atTop && !navIsShown) navIsOpen = false; ">
Toggle Nav
Details
Images
Videos
Floor Plans
3D Tour
Map
Scroll to Content
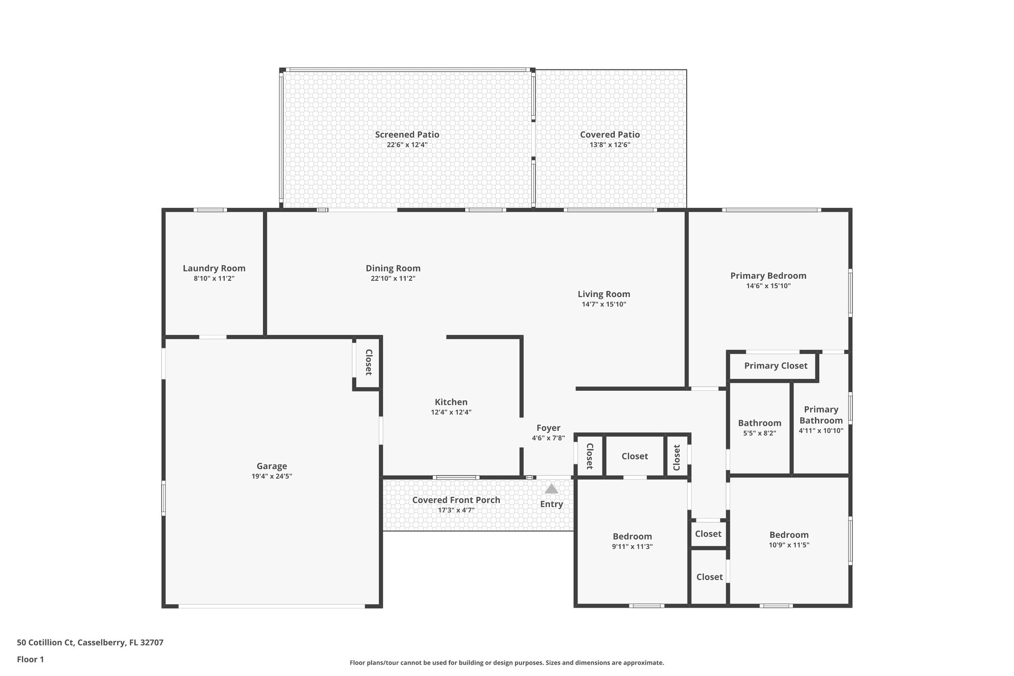
50 Cotillion Ct
Casselberry, FL 32707
$300,000
3 Bedrooms
2 Bathrooms
1,871 Sq/ft
0.31 Acre Lot
Details
$300,000
3 Bedrooms
2 Bathrooms
1,871 Sq/ft
Lot 0.31 Acres
Built in 1968
Images
Show more
Slideshow
Photo Grid
Hide
Previous
Next
Videos
Floor Plans
Slideshow
Photo Grid
Hide
Previous
Next
3D Tour